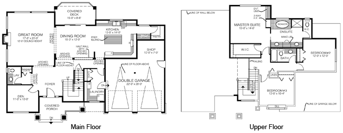
House Plans - Hampshire (7-3-964)
Home Information (Sq Ft)
Main Floor: 1482
Upper Floor: 1062
Lower Floor: -
Total Living Area: 2544
Garage: 537
Total Finished Area: 3081
Covered Entry: -
Covered Porch: 237
Balcony: -
Total Area: 3318
Home Dimensions (Ft)
Width: 60
Depth: 43
This large, stately, family home has enough curb appeal to be a key asset to any neighborhood. The interior layout is equally appealing. The large garage offers added workshop or storage space.
.
Download PDF Floor Plan
Other Information
Number of Bedrooms: 3
Number of Bathrooms: 2.5
Options Available
Walk-out Basement: yes
Full Basement: yes
Garage: -
Sundeck: yes
Covered Porch/Deck: yes
Solarium: yes
Skylights: yes
Sunroom: yes

