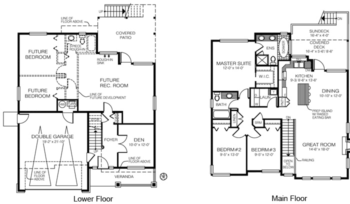
House Plans - The Thames (2-3-750)

Home Information (Sq Ft)

Main Floor: 1413
Upper Floor: -
Lower Floor: 1070
Total Living Area: 2483

Garage: 443
Total Finished Area: 2926

Covered Entry: -
Covered Porch: 120
Balcony: 86
Total Area: 3132

Home Dimensions (Ft)

Width: 40
Depth: 46

 

 

 

 

 

 

 

 

 

 

 

 

If a growing family is in your future, this family home is ideal. It includes 3 bedrooms on the second floor, plus the possibility of 2 more, as well as a rec room and roughed-in 3-piece bathroom.

 

Other Information

Number of Bedrooms:
Number of Bathrooms: 

Options Available

Walk-out Basement:
Full Basement:
Garage: -
Sundeck: -

Covered Porch/Deck: -
Solarium: -
Skylights: -
Sunroom: - yes

Search House Plans