House Plans - The Cameron
Home Information (Sq Ft)
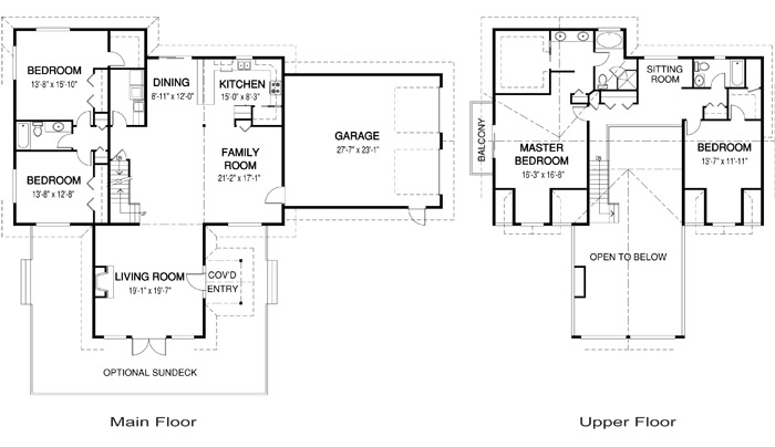
Main Floor: 1958
Upper Floor: 1180
Lower Floor: -
Total Living Area: 3138
Garage: 672
Total Finished Area: 3810
Covered Entry: 52
Covered Porch: -
Balcony: 52
Total Area: 3914
Home Dimensions (Ft)
Width: 76
Depth: 55
The incredible, front windows in this home package enable daylight to filter inside. Due to its open concept, all gathering spaces benefit from this natural lighting effect.
Other Information
Number of Bedrooms: 4
Number of Bathrooms: 3
Options Available
Walk-out Basement: yes
Full Basement: yes
Garage: -
Sundeck: - yes
Covered Porch/Deck: - yes
Solarium: - yes
Skylights: - yes
Sunroom: - yes
