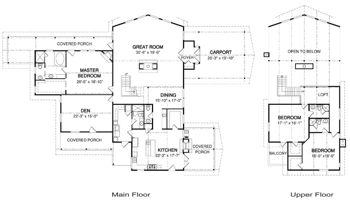
House Plans - The Elkhorn
Home Information (Sq Ft)
Main Floor: 3104
Upper Floor: 962
Total Living Area: 4066
Garage: -
Total Finished Area: 4066
Covered Entry: -
Covered Porch: 1333
Balcony: 84
Total Area: 5483
Home Dimensions (Ft)
Width: 105
Depth: 69

Log home admirers love this beautiful post and beam home design with log accents. It also features an impressive 866 sq. ft. of covered porch.
Other Information
Number of Bedrooms: 3
Number of Bathrooms: 4
Options Available
Walk-out Basement: yes
Full Basement: yes
Garage: yes
Sundeck: - yes
Covered Porch/Deck: - yes
Solarium: - yes
Skylights: - yes
Sunroom: - yes