House Plans - The Alpine 1
Home Information (Sq Ft)
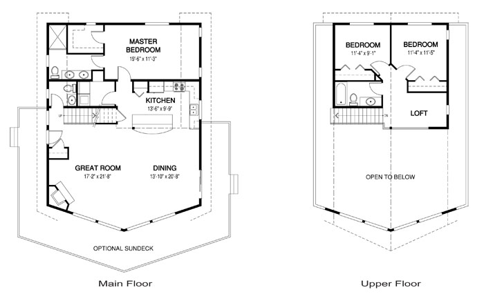
Main Floor: 1301
Upper Floor: 485
Total Living Area: 1786
Garage: -
Total Finished Area: 1786
Covered Entry: -
Covered Porch: -
Balcony: -
Total Area: 1786
Home Dimensions (Ft)
Width: 32
Depth: 44
A very desirable post and beam design, the Alpine 1 features 3 bedrooms. It’s bright, open spaces are ideal for vacation living or when featured as a permanent home.
Other Information
Number of Bedrooms: 3
Number of Bathrooms: 2.5
Options Available
Walk-out Basement: yes
Full Basement: yes
Garage: - yes
Sundeck: - yes
Covered Porch/Deck: -
Solarium: -
Skylights: - yes
Sunroom: - yes
